New 3 bedroom ranch house floor plans the classic ranch floor plan is asymmetrical and l shaped. 3 bedroom house plans with 2 or 2 12 bathrooms are the most common house plan configuration that people buy these days.

Small Country Ranch Style House Plan Sg 1681 Sq Ft
Ranch house plans are found with different variations throughout the us and canada.
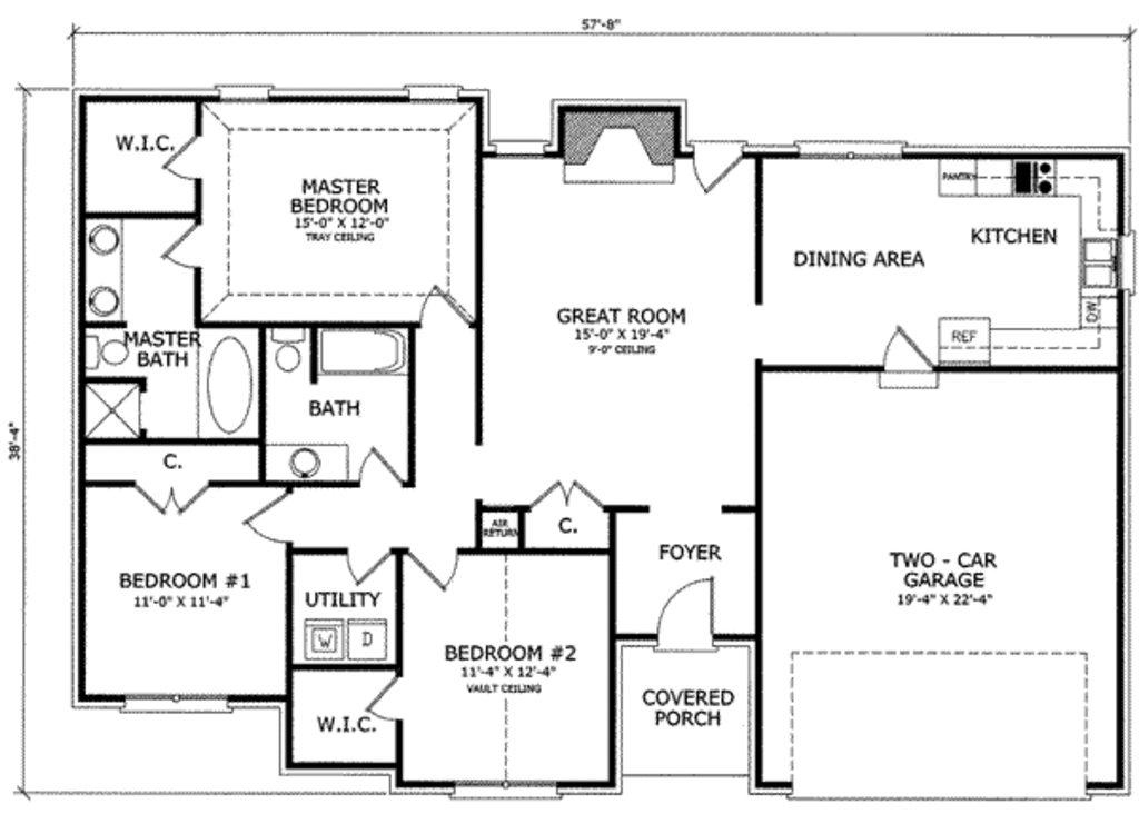
3 bedroom ranch style house plans. This ranch design floor plan is 1652 sq ft and has 3 bedrooms and has 2 bathrooms. Ranch style homes are great starter homes owing to their cost effective construction. The generous porch at the front adds curb appeal inviting you to sit a spell.
Plan ranch house plans and floor plan designs. You might also need beams sized to accommodate roof loads specific to your region. Plan ranch house plans and floor plan designs.
All house plans from houseplans are designed to conform to the local codes when and where the original house was constructed. Width 13 4 x depth 10 covered front porch. Looking for a traditional ranch house plan.
These homes offer an enhanced level of flexibility and convenience for those looking to build a home that features long term livability for the entire family. Ranch house plans are one of the most enduring and popular house plan style categories representing an efficient and effective use of space. In addition to the house plans you order you may also need a site plan that shows where the house is going to be located on the property.
Our 3 bedroom house plan collection includes a wide range of sizes and styles from modern farmhouse plans to craftsman bungalow floor plans. This 3 bedroom ranch style home has a split plan. 183 sqft width 12 x depth 15 4 garage.
124 sqft width 10 8 x depth 11 8 dining room. 3 bedrooms and 2 or more bathrooms is the right number for many homeowners. Many have an attached garage for two cars at one end two doors one near the garage and one near the middle of the house a living room and an activity room in the center bedroom and bathroom.
Width 24 x depth 18 covered rear porch. Ranch home plans or ramblers as they are sometimes called are usually one story though they may have a finished basement and they are wider then they are deep. Plan country house plans.
How about a modern ranch style house plan with an open floor plan. Dining and living areas have a tendency to be combined. Plan country house plans.
Ranch house plans and floor plan designs. While the areas of the home tend to be connected on one side of the house a hallway will lead to the bedrooms. The laundry doubles as the entry from the garage.
The master suite and the great room open to the outdoor living patio at the back of the house. This ranch design floor plan is 2005 sq ft and has 3 bedrooms and has 2 bathrooms. 3 bedroom ranch style house plans ranch homes are usually single storey dwellings.
3 bedroom house plans.

Ranch House Plans With Photos Ranch Style House Plan 3 Beds

Country House Plans With Porches Low French English Home Plan

3 Bedroom Ranch Style House For Rent Designs Plans With

2 Bedroom Ranch Style House Plans Ndor Club

Ranch Style House Floor Plans Free Farmhouse One Bedroom 3













