Mosque inside the community. 80 square yards house plan july 17 2019 get link.
Duplex house inner view yards plan design ideas most interesting.
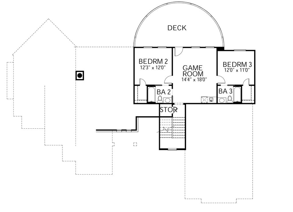
80 square yards house plan. House plan for 20 feet by 50 feet plot plot size 111 square yards the plan how to plan 30×40. 25 feet by 40 feet house plans decorchamp 25 x 40 house 3 bedroom. Photographs may show modified designs.
Buy detailed architectural drawings for the plan shown below. Discover ideas about the plan. House plans under 50 square meters.
House plan 73042 with 3 bed 3 bath. House plan for 22 feet by 35 feet plot plot size 86 square yards. Designing the interior of an apartment when you have very little space to work.
Select plan set options whats included. House for sale in sector 11 c3 north karachi duration. Kien truc nha viet recommended for you.
80 sqyards house inside gated community for sale in. Total square footage only includes conditioned space and does not include garages porches bonus rooms or decks. Brand new west open g 1 4 bed 2 drawing 2 lounge american kitchen tile bath tile flooring beautiful elevation 40 feet street near park masjid market main road vip location.
Plans for patio with fire pit. Goi y nha cap 4 dien tich 8x12m 3 phong ngu dep tien nghi duration. Single storey 4 bed rooms 1 drawing room kitchen bathroom and guest bathroom.
All house plans from houseplans are designed to conform to the local codes when and where the original house was constructed. 26 more helpful examples of small scale living save this picture.

600 Sq Ft House Plans Beautiful 600 Sq Yards House Plan New
![]()
30×80 House Plan Home Design Ideas 30 Feet By 80 Feet
![]()
80 Square Yards House For Sale In Karachi

House Plan For 30 Feet By 30 Feet Plot Plot Size 100 Square


